Ricerca

Villa in Vendita a Codigoro

454 mq 8 Locali 4 Camere 3 Bagni

Classe energetica

F
Codice: Ma 1836 € 285.000
Informazioni immobile

Splendida Villa, libera su quattro lati, in Vendita a Codigoro.
Circondata da un bel giardino curato, la Villa si sviluppa su due livelli più una ampia mansarda.
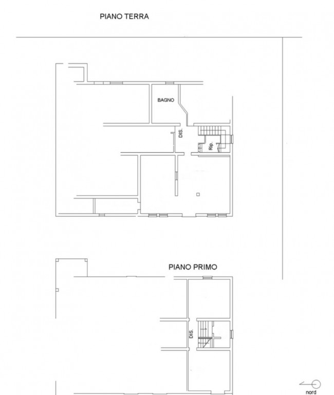
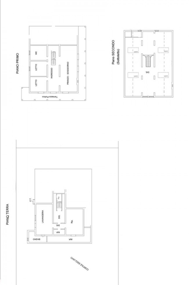
Al piano terra troviamo un ingresso nel soggiorno con camino, una spaziosa cucina, un bagno con vasca e doccia, un bagno uso lavanderia e un ripostiglio sottoscala.
Al primo piano vi sono un secondo elegante ingresso, un bellissimo e luminoso salone open space con camino e la cucina a vista e l'accesso al terrazzo, quattro grandi camere da letto matrimoniali e due bagni con vasca e doccia.
Dall'ingresso principale una importante scala in legno porta alla mansarda, divisa in tre ambienti anch'essi di generose dimensioni, tra cui una zona bar.
Completano la proprietà un garage doppio, una cantina, un magazzino e un altro bagno con finestra e doccia.

La splendida Villa, libera su quattro lati, in Vendita a Codigoro, è ubicata in posizione strategica nel centro abitato in zona residenziale tranquilla e servita, a pochi chilometri dai lidi ferraresi.

E' ideale come soluzione genitori e figli, ma vi si possono ricavare anche tre appartamenti con ingresso e giardino indipendenti.


Disponibile subito


Rif. Ma 1836 Euro 285.000

mari casa immobiliare cell. 339 4918811

Informazioni immobile
Codice: Ma 1836
Contratto: Vendita
Tipologia: Villa
Regione: Emilia Romagna
Provincia: Ferrara
Comune: Codigoro
Prezzo: € 285.000
Totale mq: 454 mq
Camere: 4
Bagni: 3
Locali: 8
Stato conservazione: Ottimo
Riscaldamento: Autonomo
Giardino: Privato
Box: Doppio, 27 mq
Caratteristiche
Terrazza
Ripostiglio
Cantina
Aria Condizionata
Nelle vicinanze
Centri Benessere
Campi da Calcio
Complessi Sportivi
Piste Ciclabili
Parchi Giochi
Stazione Ferroviaria
Trasporti Pubblici
Scuole Elementari
Scuole Medie
Scuole Superiori
Bar
Uffici postali
Uffici comunali

Ultimo aggiornamento 30-01-2026