Ricerca

Studio/Ufficio in Affitto a Ferrara

Zona: Via Bologna

140 mq 5 Locali 3 Bagni
Codice: MA 1297 € 720
Informazioni immobile

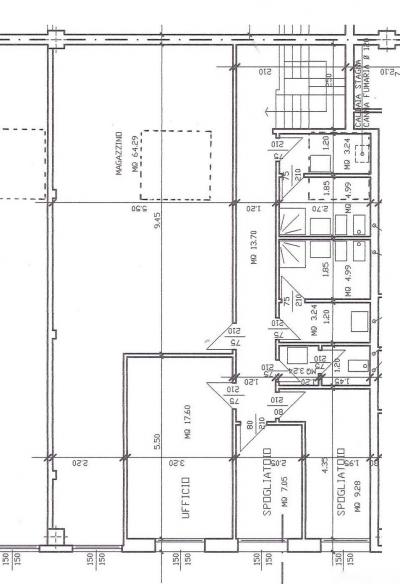
Ufficio arredato, di grandi dimensioni, in Affitto a Ferrara in zona artigianale San Giorgio, in moderno fabbricato, ottimamente ubicato e con grande visibilità.
Posto al primo piano è composto da: grande ingresso indipendente arredabile, 2 sale riunioni, 3 uffici, 3 bagni con antibagno.
Riscaldamento autonomo, nessuna spesa condominiale.

L' ufficio arredato in Affitto a Ferrara in zona artigianale San Giorgio, si trova in una palazzina nuova a pochi minuti dal centro città e vicina al centro commerciale.

Libero subito dal 1°Gennaio 2026.

Rif. MA 1297 Euro 720

mari casa immobiliare cell. 339 4918811

Informazioni immobile
Codice: MA 1297
Contratto: Affitto
Tipologia: Studio/Ufficio
Regione: Emilia Romagna
Provincia: Ferrara
Comune: Ferrara
Zona: Via Bologna
Prezzo: € 720
Totale mq: 140 mq
Bagni: 3
Locali: 5
Stato conservazione: Ottimo
Riscaldamento: Autonomo
Nelle vicinanze
Complessi Sportivi
Piste Ciclabili
Bar
Centri commerciali
Fuori mura

Ultimo aggiornamento 11-09-2025