Appartamento in Affitto a Ferrara
Zona: Via Bologna
Classe energetica
Appartamento in Affitto a Ferrara, in zona via Fabbri, in quartiere residenziale di recente edificazione.
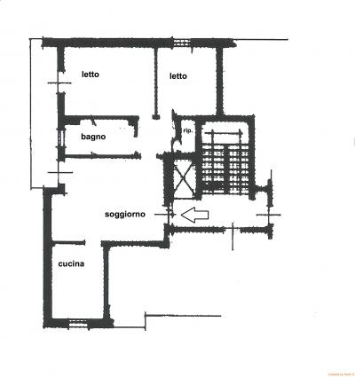
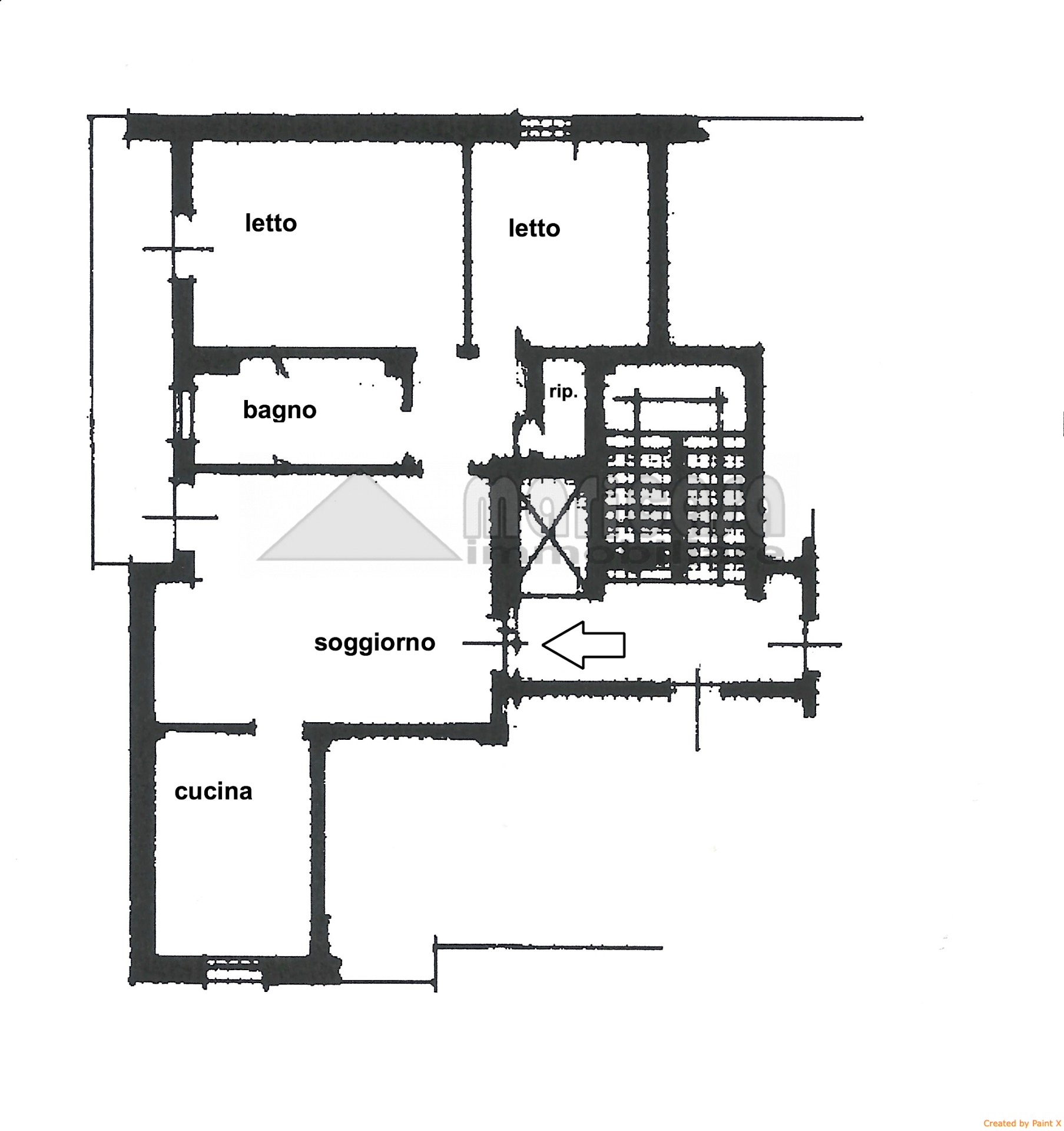
Posto al primo piano di una palazzina in pietra a vista servita da ascensore, è composto da: ingresso nel soggiorno con grande balcone, cucina abitabile arredata completa di lavastoviglie, zona notte con una camera matrimoniale, un' ampia camera singola, bagno arredato finestrato e ripostiglio.
Riscaldamento e utenze autonome, serramenti in legno con termopan, porta blindata, garage .
L'Appartamento in Affitto a Ferrara, zona via Fabbri, posto al primo piano e servito da ascensore, è ubicato in quartiere residenziale ben servito da negozi, fermate dei mezzi pubblici, piste ciclabili, scuole e zone verdi.
Disponibile da gennaio 2026.
RIF. MA 1416 Euro 750,00
mari casa immobiliare cell. 339 4918811
Ultimo aggiornamento 19-12-2025
